Hauskatalog - Einfamilienhäuser

C-H 118 E

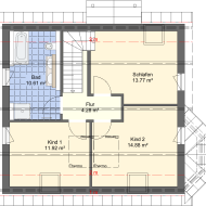
Wohnfläche gesamt: 118 m²
Wohn-/Nutzfläche gesamt: 165 m²
Grundfläche: 9,25 x 8,65 m
Klicken Sie auf die Bilder, um sie zu vergrößern.
C-H 118 EC-H 118 EC-H 118 EC-H 118 EC-H 118 EC-H 118 EC-H 118 EC-H 118 E