Hauskatalog - Einfamilienhäuser

C-H 129

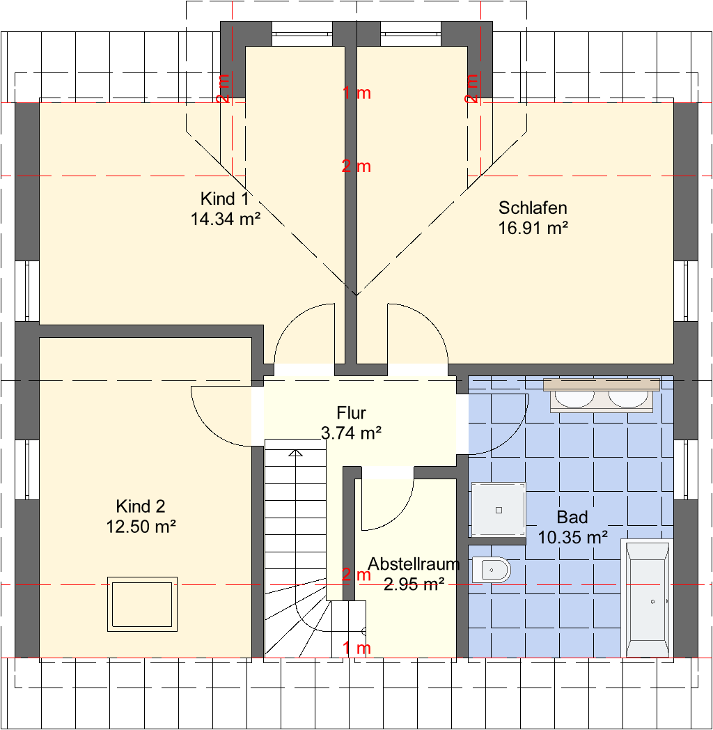
Wohnfläche gesamt: 129 m²
Wohn-/Nutzfläche gesamt: 181 m²
Grundfläche: 10,00 x 9,00 m
Klicken Sie auf die Bilder, um sie zu vergrößern.
C-H 129C-H 129C-H 129C-H 129C-H 129C-H 129C-H 129C-H 129