Hauskatalog - Einfamilienhäuser

C-H 131

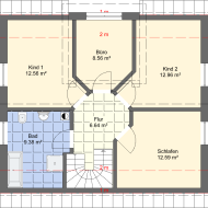
Wohnfläche gesamt: 131 m²
Wohn-/Nutzfläche gesamt: 179 m²
Grundfläche: 10,50 x 9,00 m

 

Klicken Sie auf die Bilder, um sie zu vergrößern.  

C-H 131C-H 131C-H 131C-H 131C-H 131C-H 131C-H 131C-H 131