Hauskatalog - Einfamilienhäuser

C-H 149

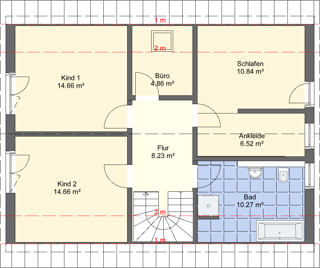
Wohnfläche gesamt: 149 m²
Wohn-/Nutzfläche gesamt: 214 m²
Grundfläche: 11,75 x 9,00 m

 

Klicken Sie auf die Bilder, um sie zu vergrößern. 

C-H 149C-H 149C-H 149C-H 149C-H 149C-H 149C-H 149C-H 149